产品中心
Product Center

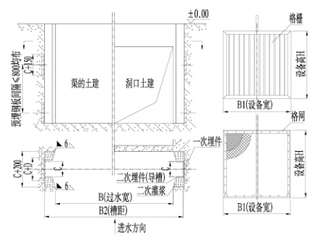
BPLS、BPLW型平板格栅、格网

查看:1229 次

水下渣物采用“T”形耙人工清理。
若前部加设渣斗和配备吊具,则可进行水上清理。当配备电动式自动化控制系统,可实现自动切换捞渣及冲刷功能。
多台格栅(网)互用一个吊具时应配备抓落机构,吊耳形状与所用吊具有关。
洞口使用与渠道使用的区别主要由承压水头确定。
渠(洞)较深场合可考虑叠加组合形式。

咨询详情
0514-80296888
15800999622
产品详情

外形结构
技术参数
订货须知
对照应用场合结合工艺要求,注明型号、规格、材质及表面处理要求;不注明则表示按碳钢和普通防腐订货。
配套件(抓落机构、起吊装置、搁门器等)均参照本样本相关内容,另外订货。
表外规格请另索资料,对吊耳形状或结构形式有特殊要求应提供简图订货。
无法运输的大型规格格栅和格网可现场制造。
【扫一扫企业微信】
24小时服务热线:
0514-8029 6888
158-0099 9622
邮箱:bwogroup@163.com
地址:江苏省扬州市经济技术开发区画舫路65号
Copyright © 2024 江苏宝蛙环保集团有限公司 版权所有 All rights reserved 备案号:苏ICP备2024073741号-1