产品中心
Product Center

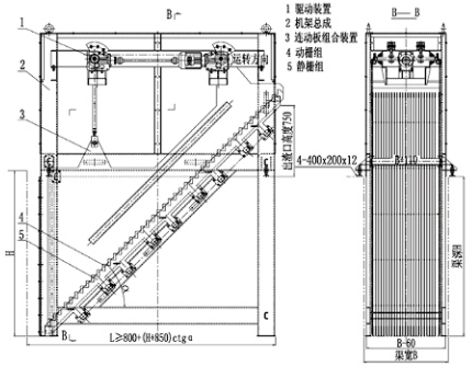
BJT型阶梯式格栅除污机

查看:875 次

由动、静栅片作自动交替运动,使拦截的漂浮物由动、静栅片交替传送,逐步上移至卸料口,从而被从水中送出,是一种典型的细格栅。适用于井深较浅,宽度不大于2m,漂浮物中有许多杂长丝,易缠绕或吸附在栅上难以清理的场合。

咨询详情
0514-80296888
15800999622
产品详情

外形结构
技术参数
订货须知
订货时应注明渠宽B、渠深H、安装角度a、栅隙b等规格参数,不注明表示:卸料高度按750mm,安装角度按50°订货。
不注明机架材料(分碳钢、不锈钢)和防腐要求表示按碳钢普通防腐订货,不注明栅片(分玻璃钢与不锈钢)材料表示按玻璃钢订货。
电控箱、水位控制仪、所有预埋件及配套渣车、渣斗、输送机,压3榨机等设备或配件应另外订货并注明要求。
【扫一扫企业微信】
24小时服务热线:
0514-8029 6888
158-0099 9622
邮箱:bwogroup@163.com
地址:江苏省扬州市经济技术开发区画舫路65号
Copyright © 2024 江苏宝蛙环保集团有限公司 版权所有 All rights reserved 备案号:苏ICP备2024073741号-1