产品中心
Product Center

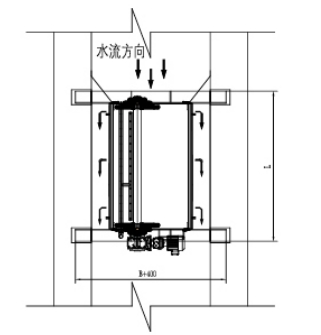
BKBG型内进流细格栅除污机

查看:240 次

内进流细格栅除污机一般用于城市污水处理厂,自来水厂细格栅渠。用于拦截、清除液体中的各种固体颗粒物、悬浮物、毛发纤维等。特别适用于MBR膜处理工艺,大幅降低后续处理工艺负荷,提高运行效率。

咨询详情
0514-80296888
15800999622
产品详情

外形结构

技术参数

订货须知
对照技术性能结合工艺要求合理选型,详细注明型号规格。
订货时需注明主体材质(碳钢、不锈钢)及防腐要求,如需特殊材质订货时注明。
电控箱、液位传感器、预埋件等定货时需注明。
【扫一扫企业微信】
24小时服务热线:
0514-8029 6888
158-0099 9622
邮箱:bwogroup@163.com
地址:江苏省扬州市经济技术开发区画舫路65号
Copyright © 2024 江苏宝蛙环保集团有限公司 版权所有 All rights reserved 备案号:苏ICP备2024073741号-1