产品中心
Product Center

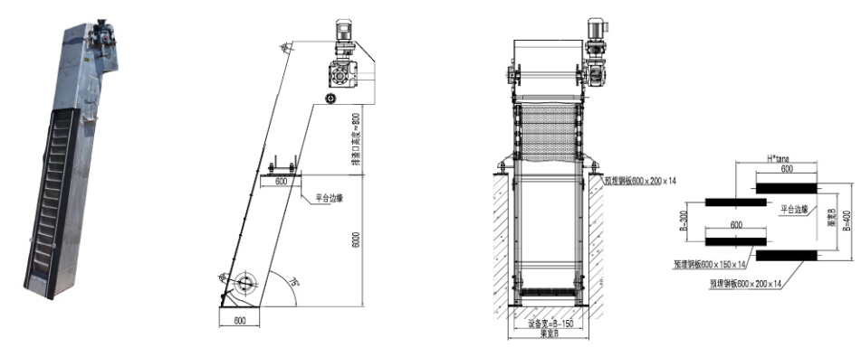
BWG型网板式阶梯格栅

查看:417 次

网板式阶梯细格栅一般用于污水处理厂细格栅渠,是一种新型细格栅,拦截细小漂浮物,适用于井宽、并深不大的场合。特点是采用不锈钢孔板制成阶梯式滤网,不会产生垃圾缠绕现象,除污效果好。链条采用特制全封闭结构,污水中的杂质不会进入链条轨道,运转时不会产生常用细格栅经常会产生的堵塞现象。孔板之间衔接紧凑,连接缝隙小,不会产生漏渣现象。

咨询详情
0514-80296888
15800999622
产品详情

外形结构
技术参数
订货须知
对照技术性能结合工艺要求合理选型,详细注明型号规格。
订货时需注明主体材质(碳钢、不锈钢)及防腐要求,如需特殊材质订货时注明。
电控箱、液位传感器、预埋件等定货时需注明。
【扫一扫企业微信】
24小时服务热线:
0514-8029 6888
158-0099 9622
邮箱:bwogroup@163.com
地址:江苏省扬州市经济技术开发区画舫路65号
Copyright © 2024 江苏宝蛙环保集团有限公司 版权所有 All rights reserved 备案号:苏ICP备2024073741号-1