产品中心
Product Center

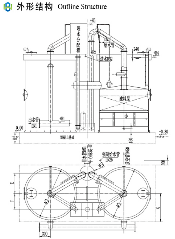
BGWL型钢制无阀过滤器

查看:304 次

无阀过滤器属重力流过滤,即利用水体自身的重力自动运行完成稳定的过滤及反冲洗过程。在运行过程中不需要人工操作,有效减轻工人劳动强度,且出水水质好。普通砂质滤料即能完成地表水的过滤,当经适当改造,采用其它相应的滤料后还可实现低下水的除铁锰以及工业用水的软化除盐等。

咨询详情
0514-80296888
15800999622
产品详情

外形结构

技术参数

订货须知
对照技术性能结合工艺要求合理选型,注明型号规格。不注明法兰标准表示按标准JB/T81-94 PN1.0MPa订货。
注明设备的材质和防腐要求,不注明表示按碳钢和普通防腐订货。
出口配套法兰、外部管路、滤料、水泵、阀门、预埋件等应另外订货。
需要大型组合式无阀过滤器或方形过滤器等情况可另索资料,商量订货。
【扫一扫企业微信】
24小时服务热线:
0514-8029 6888
158-0099 9622
邮箱:bwogroup@163.com
地址:江苏省扬州市经济技术开发区画舫路65号
Copyright © 2024 江苏宝蛙环保集团有限公司 版权所有 All rights reserved 备案号:苏ICP备2024073741号-1